- 77 m²
- 1
- 77 m²
- 1
NIEUW !! RESIDENTIE DE CORNER is een prachtig kleinschalig nieuwbouwproject op een zeer goede locatie (hoek Hermanslaan-Schuilstraat).
De appartementen worden volledig afgewerkt en zullen standaard voorzien zijn van vloerverwarming, warmtepomp, …
Zeer energiezuinig (e peil 20).
De residentie zal bestaan uit slechts 12 appartementen en 3 penthouses. (bruto opp van 77-123m²)
Fietsenberging in de kelderverdieping.
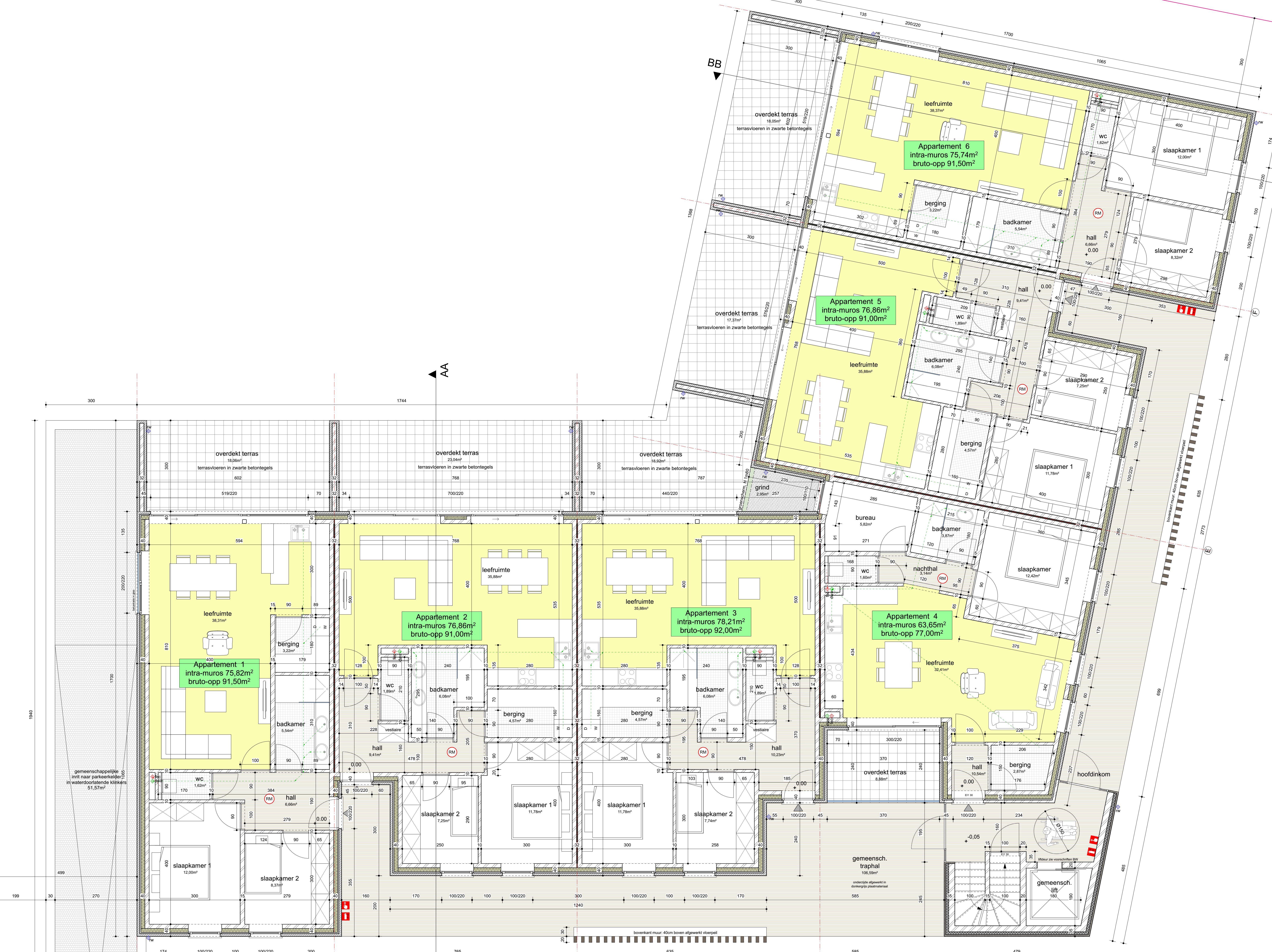
Op gelijkvloers: 6 appartementen
- App 1 : 91.5m²(2slk) met terras van 18m² = verkocht
- App 2 : 91m² (2slk) met terras van 23m² = 241.000 € excl kosten
- App 3: 92m² (2slk) met terras van 18m² = 239.000 € excl kosten = In Optie
- App 4: 77m² (1 slk + buro met raam) met terras van 8.8m² = 210.000 € excl kosten
- App 5: 91m² (2slk) met terras van 17m² = verkocht
- App 6: 91.5m²(2slk) met terras van 18m² = verkocht
Op verdieping 1: 6 appartementen
- App 7 : 91.5m²(2slk) met terras van 18m² = verkocht
- App 8 : 91m² (2slk) met terras van 23m² = verkocht
- App 9: 92m² (2slk) met terras van 18m² = 239.000 € excl kosten
- App 10: 77m² (1 slk + buro met raam) met terras van 8.8m² = 210.000 € excl kosten
- App 11: 91m² (2slk) met terras van 17m² = 240.000 € excl kosten
- App 12: 91.5m²(2slk) met terras van 18m² = verkocht
Op verdieping 2: 3 penthouses met 3 slk
- App 13 : 120 m²(3slk) met terras van 33 m² = verkocht
- App 14 : 123m² (2slk) met terras van 24 m² = verkocht
- App 15 : 120 m² (3slk) met terras van 33 m² = verkocht
OPM: Parkings met bergingen zijn voorzien in kelderverdieping.
Deze zijn niet inbegrepen in de prijs zoals hierboven vermeld en zijn verplicht bij aan te kopen.
Prijs 1 parking met kelderberging (voor app 1 tem 12): 25.000 € excl kosten
Prijs 2 ondergrondse parkings met 1 kelderberging voor de penthouses 13 tem 15: 35.000 € excl kosten.
Interesse in dit prachtig nieuwbouwproject? Contacteer ons op 089 206 111 of office@immofusion.be
Financieel en beschikbaarheid
- Nettoprijs
- € 210.000
- Onder BTW stelsel
- Ja
- Beschikbaarheid
- Bij oplevering
Gebouw
- Bewoonbare opp.
- 77,0 m²
- Constructie
- Gesloten
- Bouwjaar
- 2025
- Verdieping(en)
- 1
- Netto opp.
- 8,8 m²
Terrein
- Tuin
- Nee
Indeling
- Keuken
- Ja
- Terras
- Ja
Ligging
- Omgeving school
- Ja
- Omgeving openbaar vervoer
- Ja
- Omgeving winkels
- Ja
- Omgeving autosnelweg
- Ja
Comfort
- Gemeubeld
- Nee
- Lift
- Ja
Energie
- E-level
- 20
- Type ramen
- Aluminium
- Beglazing
- Dubbele beglazing
- Verwarming
- warmtepomp
Stedenbouwkundige informatie
- Bouwvergunning
- ja
- Voorkooprecht
- Nee
- Bodemattest
- Ja














