- 306 m²
- 306 m²
Rustig gelegen bouwperceel met vergunde plannen – onmiddellijk bouwklaar
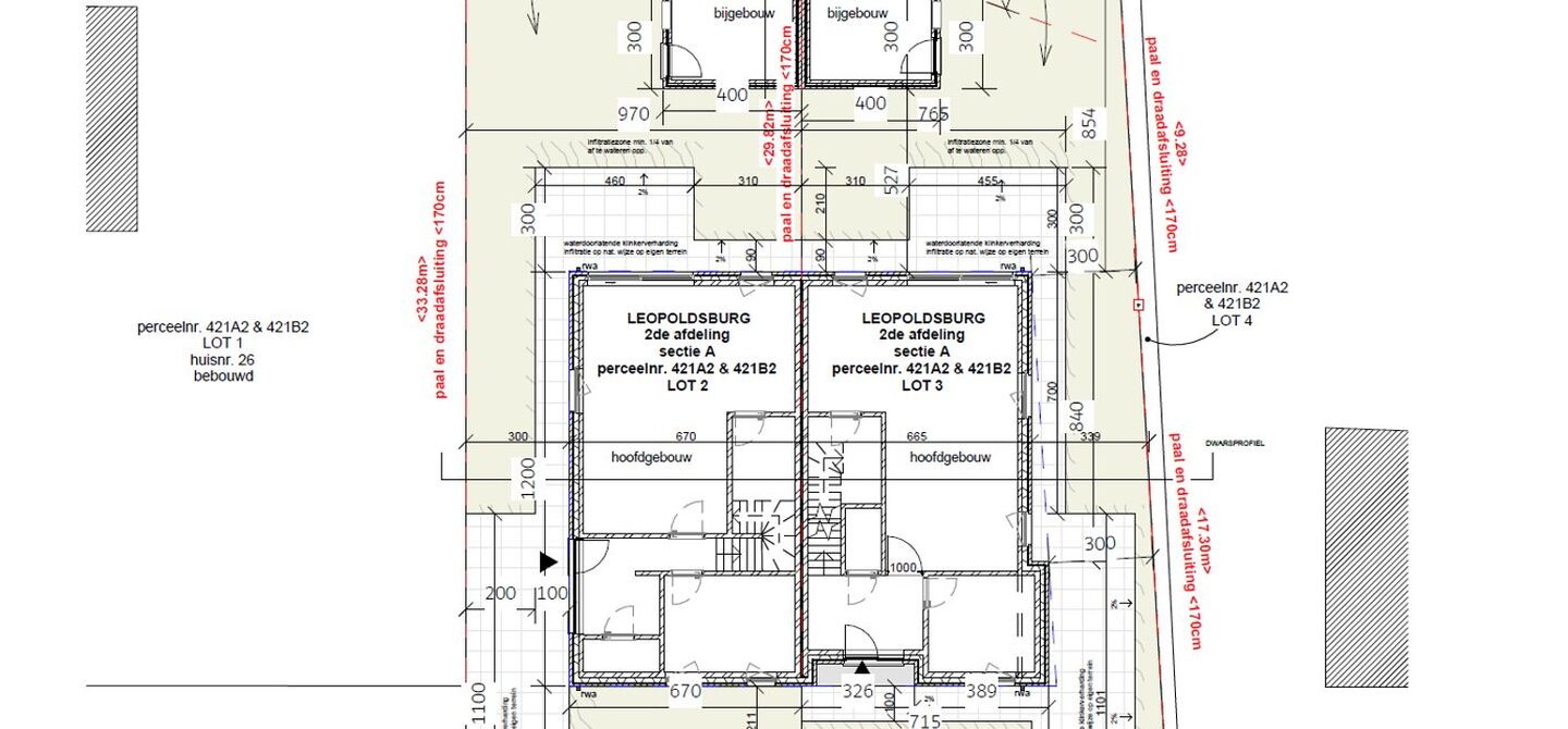
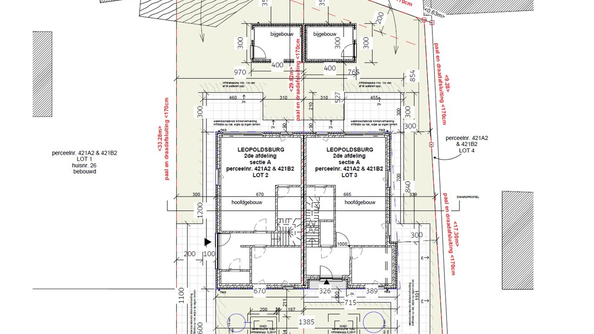
In de Vloosstraat te Leopoldsburg vinden we deze bouwgrond voor halfopen bebouwing, gelegen in een rustige en kindvriendelijke omgeving. Dit perceel maakt deel uit van een recente verkaveling en combineert een aangename ligging met een vlotte verbinding naar het centrum en omliggende gemeenten.
Met een perceeloppervlakte van ca. 306 m² biedt dit perceel alle mogelijkheden voor het realiseren van een moderne woning. Bovendien wordt de grond verkocht met volledig vergunde plannen, zodat u onmiddellijk kan starten met bouwen.
De voorziene woning is ontworpen met een praktische indeling, veel lichtinval en een hedendaagse architectuur, ideaal voor comfortabel en energiezuinig wonen.
Dankzij de gunstige ligging geniet u van rust en privacy, terwijl alle voorzieningen zoals winkels, scholen en openbaar vervoer zich in de nabijheid bevinden.
Pluspunten:
- Rustige en kindvriendelijke ligging
- Vergunde bouwplannen aanwezig
- Direct bouwklaar
- Moderne bouwmogelijkheden
- Goede verbindingen
- Ideaal voor eigen bewoning of investering
Mogelijkheid om Lot 2 en Lot 3 samen aan te kopen.
Een bezichtiging of meer info, contacteer ons gerust!
De ideale kans om uw woningproject zonder zorgen en zonder vertraging te realiseren!
Financieel en beschikbaarheid
- Nettoprijs
- € 135.000
- Beschikbaarheid
- Vanaf akte
Terrein
- Perceel opp.
- 306,0 m²
- Tuin
- Nee
Indeling
- Terras
- Nee
Ligging
- Omgeving school
- 500 m
- Omgeving openbaar vervoer
- 500 m
- Omgeving winkels
- 500 m
- Omgeving autosnelweg
- 7.000 m
Stedenbouwkundige informatie
- Bestemming
- Woongebied
- Bouwvergunning
- nee
- Verkavelingsvergunning
- ja
- Voorkooprecht
- Nee
- Bodemattest
- Ja













